m

This is Aalto. A Professional theme for
architects, construction and interior designers

Call us on +651 464 033 04

531 West Avenue, NY

Mon - Sat 8 AM - 8 PM

Top
m

Green Urban Housing

  |  Green Urban Housing

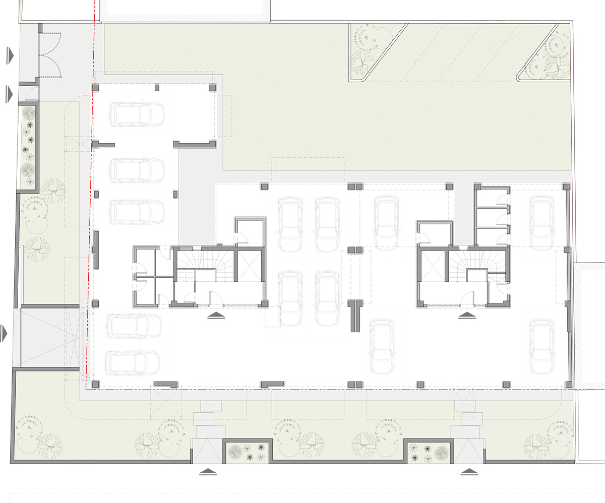
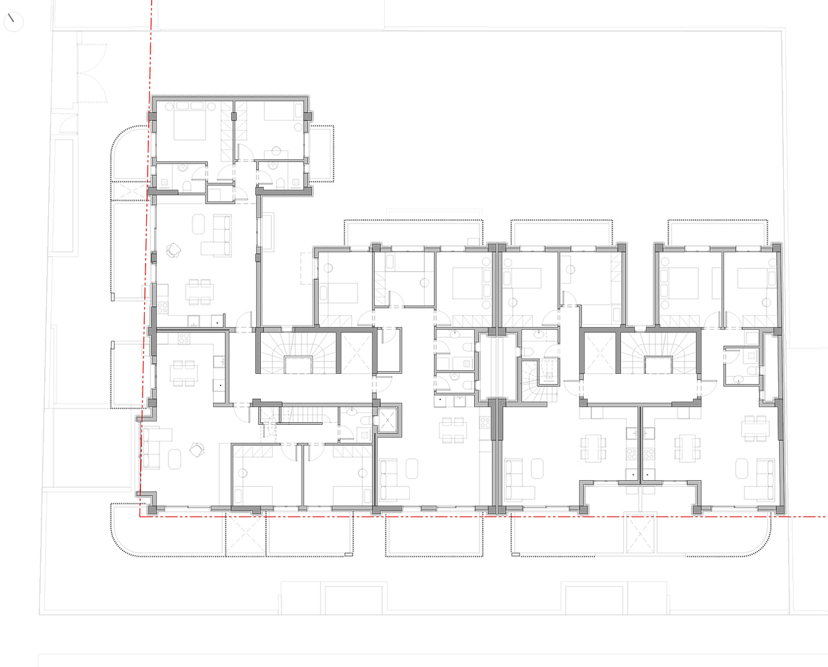
Green Urban Housing is a residential three-storey building in Thermi, Thessaloniki.

The building is divided into two blocks, each of which has its own staircase – elevator.

In a 1.121 sqm plot, the new building generates 11 home units with a total building area of 1.067 sqm, providing different apartment typologies to comply with the variety of the modern families. Four one-bedroom apartments, four two-bedroom apartments, one three-bedroom apartment and two duplex-houses.

 

Key parameters taken under consideration through the design process were:

  • Variety of housing unit sizes
  • Building’s position on plot, considering apartments’ orientation, views, existing adjacent dwellings and accessibility
  • Interior spaces free of structural grid, due to exterior position of columns and beams

In addition, crucial parameters were:

  • Creating bright spaces, all naturally ventilated
  • Increased level of privacy for each apartment, through careful consideration of openings, sound insulation, position and size of balconies and private roof garden areas
  • Energy efficient design achieved with the use of high exterior insulation panels, underfloor heating system, energy efficient openings, a green roof, sun shading pergolas and cantilevers
  • Green areas and vegetation

The design is characterized by its essential structure and balanced colors: the result is elegant and simple. A contemporary yet friendly and refined apartment building. A green aesthetic approach, with a warm light color palette and simple metal details.

 

A place people can call home.

 

Planning application is in progress.

LOCATION:

THERMI

USE:

RESIDENTIAL

AREA:

1067m2

MATERIAL:

WHITE BEIGE MORTAR / TAUPE OPENINGS / LINEAR RAILING

STATUS:

PLANNING APPLICATION

YEAR:

2022